城泰枫华天成

案例户型 三居
装修风格 北欧
房屋面积 70-100㎡
所属区域 新建区

设计说明

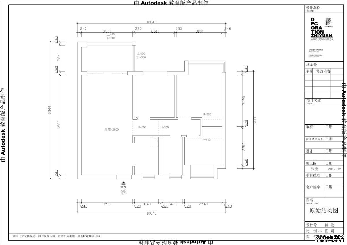
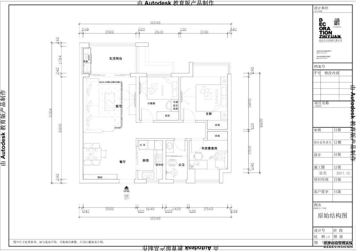
城泰枫华天成-89平方-北欧风

全包预算:109800   软装预算:31000

灰褐色北欧风:以简洁优雅的设计,予以冷淡之外的温馨,热情与冷静同在,活力与沉稳相融,一如懂生活的人,舒适安静别有风情。灰褐色是令人爱不释手的中性色,如山峦泥土般的坚韧与温润、沉稳舒缓,散发着无与伦比的优雅魅力。 浓浓的暖灰调北欧风,各种绿植与空间格调相映成趣。优雅浅灰搭配格调胡桃木自然宁静、优雅舒适,是都市年轻人追求的静心之所养生之居。由浅褐色与高级灰组建而成的餐厅将格调与氛围结合,以“色”诱人打造出美味空间,将居家生活的随适感完美展现,为良好的就餐做好准备,油然而生的深沉美令人爱上了这份难言的情调。


暂无设计师