城泰枫华天成
设计说明
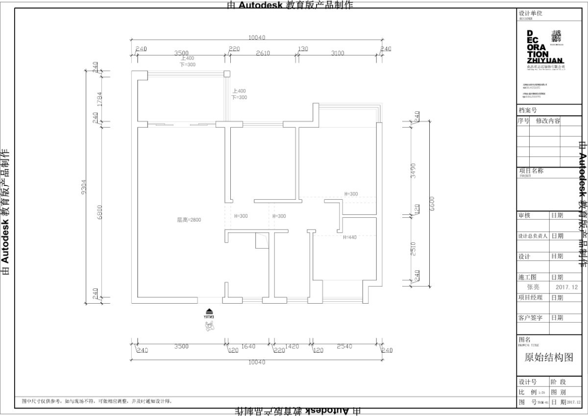
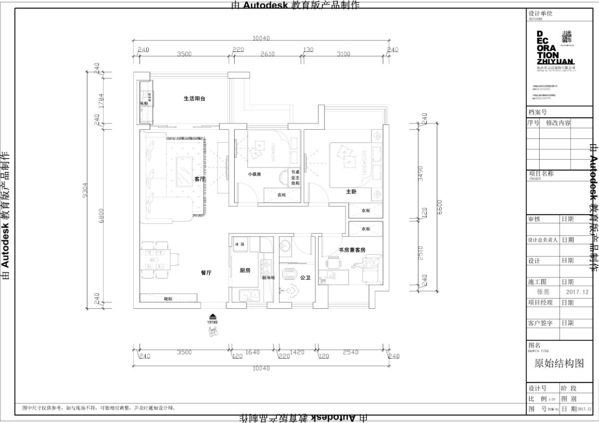
原始结构图:
优点:1.户型结构方正,整体结构良好。 2.通风效果以及光线极佳。3.空间利用率高。
缺点:1.房间较小 2.厨房注意光线问题
解决方案:1.针对该户型无需过多改动墙体结构,可采用色彩搭配出整体的设计效果。
2.利用多功能家具以增加储物空间。
风格:北欧风格
类型:全包
造价:10.5万
材料品牌:东鹏瓷砖 马可波罗瓷砖 、生活家地板,海尔整体橱柜,熊猫电线、日丰水管、箭牌卫浴
设计说明:
本案采用北欧风格来体现空间感, 该户型的客厅区域空间不错,光线十足,所以墙面只采用了乳胶漆调色来处理,
摒弃了复杂的电视背景墙,只用文化砖以及木制作来做点缀。客厅吊顶给空间营造延伸感,整体色调以灰色、原木色、白
色为主,整体感觉温暖而不失冷艳,以亮黄色作为点缀活跃空间。餐桌上方采用了鱼骨架来增添生活趣味。 房间则以暖色
调为主,打造一份轻松、温馨的睡眠空间。












