锦苑阳光
设计说明
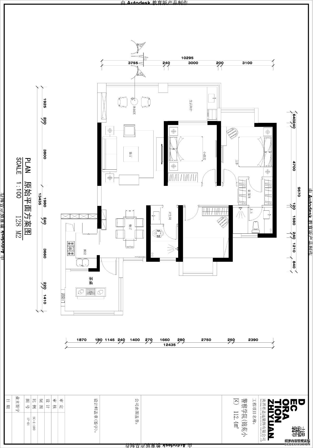
案例信息
楼盘:锦苑阳光
户型:三室两厅一厨两卫
面积:128平
造价:全包:168000元
主案设计师:姚志明
本案是简美风格布局开阔明亮,所有的线条简约而规整,克制且必须。灰白的低调让渡出更多的视觉焦点以承载孔雀蓝的高贵,诉说着一种精致清雅的存在。私宅设计中尤其要考虑到居住者的使用需求,用心去衡度每一个细节、元素在空间中的配比。对于空间的美而言,创造出居住的氛围,更多地还是需要由居住者去感受和传递……








案例信息
楼盘:锦苑阳光
户型:三室两厅一厨两卫
面积:128平
造价:全包:168000元
主案设计师:姚志明
本案是简美风格布局开阔明亮,所有的线条简约而规整,克制且必须。灰白的低调让渡出更多的视觉焦点以承载孔雀蓝的高贵,诉说着一种精致清雅的存在。私宅设计中尤其要考虑到居住者的使用需求,用心去衡度每一个细节、元素在空间中的配比。对于空间的美而言,创造出居住的氛围,更多地还是需要由居住者去感受和传递……








已有 2000+ 位业主提交设计需求