绿地国际博览城
设计说明
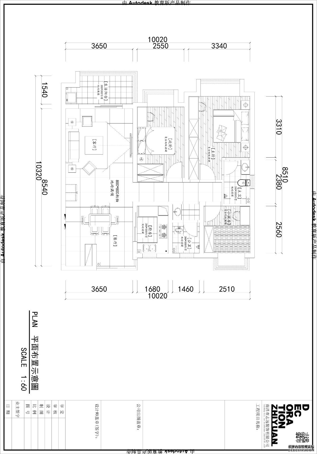
楼盘:绿地国际博览城
面积:115
风格:北欧
业主要求:一家四口居住,为爱共筑新家。女业主从事的是平面设计工作,男业主从事零售行业,爱好摄影,吉他。希望家里颜色丰富些,不要太单调,家具体量不要太大,把空间释放出来,储物空间要求高,喜欢把家里收拾的很整洁。
大面积通透的采光让客厅显得十分明亮宽敞,客厅的墙面和地面没有繁复的雕花和纹样装饰,只用简单的直线条和色块来区分点缀,整体干净简洁。








楼盘:绿地国际博览城
面积:115
风格:北欧
业主要求:一家四口居住,为爱共筑新家。女业主从事的是平面设计工作,男业主从事零售行业,爱好摄影,吉他。希望家里颜色丰富些,不要太单调,家具体量不要太大,把空间释放出来,储物空间要求高,喜欢把家里收拾的很整洁。
大面积通透的采光让客厅显得十分明亮宽敞,客厅的墙面和地面没有繁复的雕花和纹样装饰,只用简单的直线条和色块来区分点缀,整体干净简洁。








已有 2000+ 位业主提交设计需求