首页
青春志远
抱一美墅
锤子旧改
服务模式
全屋整装
精装升级
旧房改造
设计团队
志远工艺
志远售后
志远口碑
了解志远
志远简介
公益课堂
公司动态
装修知识
400-992-0017
首页
>
实景案例
绿地国际博览城
案例户型
三居
装修风格
现代
房屋面积
100-150㎡
所属区域
红谷滩新区
设计说明
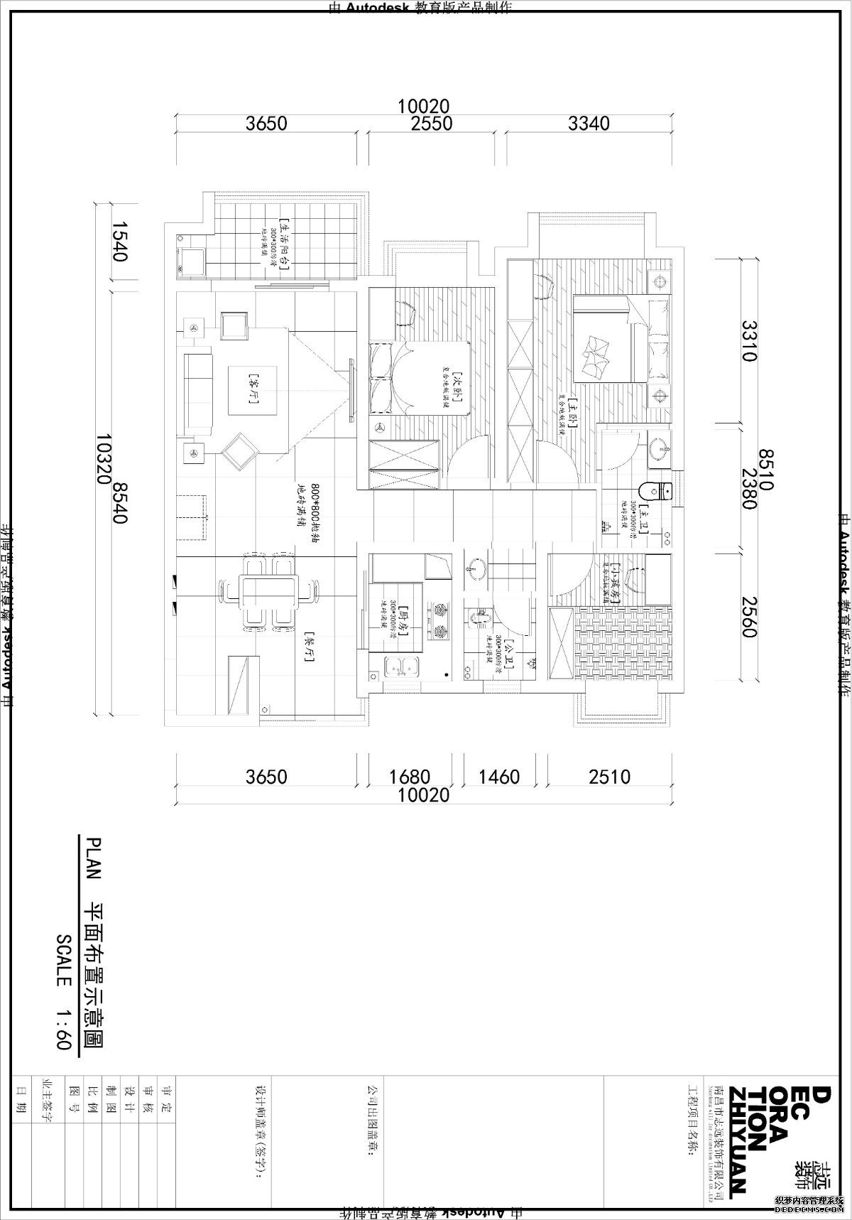
楼盘:绿地国际博览城
面积:115
风格:现代简约
暂无设计师
相关案例推荐
快速预约定制装修服务
已有
2000+
位业主提交设计需求
立即预约
电话咨询
400-992-0017
获取装修报价
立即预约
二维码
官方公众号
返回顶部