中航瑶湖郡

案例户型 三居
装修风格 现代
房屋面积 100-150㎡
所属区域 南昌县

设计说明

设计师:毕承前

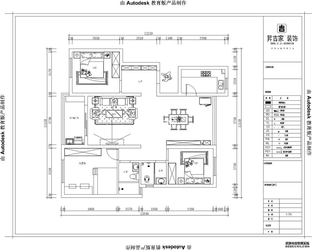
面 积:125平方

已开工工地:300多套

房 型:三房两厅两卫

风 格:现代风格

工程造价:15万

主材类别:地板,地砖,洁具,衣柜,橱柜,木门等

客户情况:一家四口两个小孩,三间卧室功能使用分别为主卧、儿童房、父母房。

设计说明:

客户对于房子的风格上是比较有追求的,通过多次的沟通确定喜欢明亮的欧式风格,主卧融合艺术的家具,床品,配饰,在空间内表达对生活的的感受,触感自然舒适的床品,展露休憩空间应有的安逸。简洁而不随便,高级而不浮夸,缓缓躺下到舒适的梦乡,感受治愈的气息,是在都市中的理性状态回归到了内心柔和放松的力量。父母房采用白色为主色调,融合蓝色装饰,散发高雅卓越的低调气息。时尚稳重的家具以及暖色的灯光氛围点缀其中,如冬日暖阳又似暗夜星光,无声传递默默温情。儿童房的粉色代表甜甜的梦幻,白色代表单纯童趣,活泼中带有一丝宁静,产自土耳其不规则地毯,改变了空间原本单一的画面,充满童思遐想,将空间构成成孩童富饶无垠的精神世界一隅。

本案例设计师

钱锦

钱锦

设计级别:首席设计师
设计理念:空间有限,创意无限